• office tour
  • Work
  • About
  • Contact
pcm + design architects

design matters

  • office tour
  • Work
  • About
  • Contact

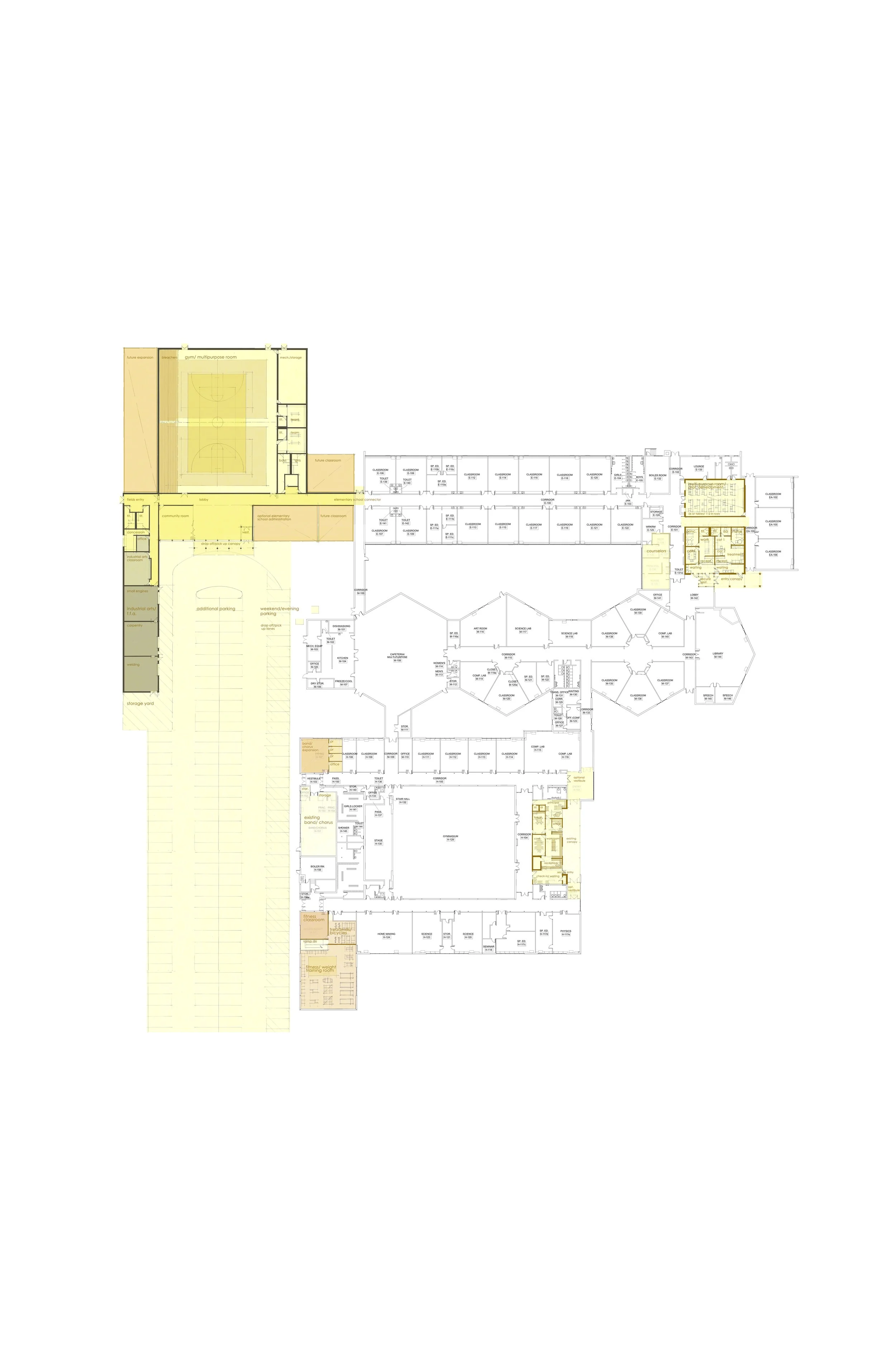
Ilini Central SD

PCM + Design provided complete architectural and engineering services to the Illini Central School District. The project was completed in the Summer of 2025.

CMMcGuire-20250605-1208 med.jpg
CMMcGuire-20250605-0185 med.jpg
CMMcGuire-20250605-0559 med.jpg
CMMcGuire-20250605-0494 med.jpg
CMMcGuire-20250605-0648 med.jpg
CMMcGuire-20250605-0364 med.jpg
IC overall floor plan 5-26.jpg

Powered by Squarespace